| 歐普商照,將照明的詩意寫入花間堂 |
|
|
|
|
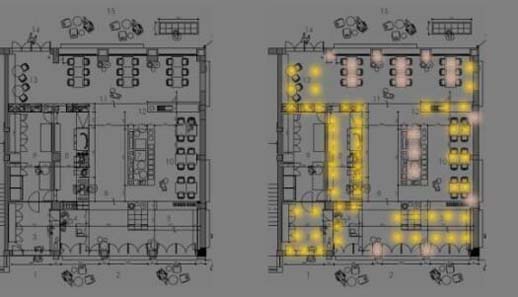
| 通過與室內設計師的通力合作,歐普商照設計團隊圓滿完成了蘇州花間堂·麗則女學精品酒店的照明設計,這只是歐普商照眾多設計作品中的一例,卻能很好體現在照明設計中,歐普商照堅持與室內設計師密切溝通,緊密合作帶來的共贏,酒店業主對空間光照贊口不絕,眾多設計亮點也是旅客久久駐足不愿離開的地方。

10月14日,歐普照明商用事業部高級設計經理文宏昌在“祝融獎”決賽現場分享了精品酒店“花間堂“照明設計案例,獲得了在場嘉賓的頻頻贊同,現場掌聲陣陣。
在與室內設計師溝通的過程中,歐普商照照明設計團隊首先對酒店前臺的空間照明提出了異議。室內設計師人為立面很重要,需要強光,但歐普商照團隊認為兩邊的進深和空間不是很大,利用自然光就可以滿足需求。

最終,在多次探討之下,通過純粹的花燈,以最簡單的方式照亮空間,效果得到業主認可,成為游客最愛留影空間之一。

在酒店大堂的照明需求商,歐普商照設計團隊困惑于需不需要燈,而室內設計師表達度假型酒店大堂確實有光照的需求,所以歐普商照設計團隊在這些地方設置了一些功能型的燈具,使它的空間稍微有一點點光,整個空間呈現出更加均勻、柔和,減少強烈對比,增強光照下空間的舒適性。

在花間堂的其他功能區域,歐普商照團隊也有諸多精心考量的設計呈現。 度假型精品酒店的餐廳和商務型酒店的餐廳承載著不同功能。針對花間堂的全日制餐廳,歐普商照設計團隊充分考慮它兼備著吃飯、聊天、休息、發呆,各種各樣的功能,利用光斑的明暗對比效果,分割出不同的區域。


對于酒店客房的設計,歐普商照照明設計團隊計劃通過減少空間燈的數量,提升空間美感。同時考慮到實際光照功能需求,決定采用室內增加花燈,在不破環整體美感的同時,使得光照的功能需求也的到滿足。


花間堂的照明設計只是歐普商照設計團隊的諸多作品之一,歐普商照致力于用光創造價值,未來將有更多酒店作品面世,敬請期待。 |
|
|
| 添加人:本站提供 發布時間:2016-10-28 17:48:54 |
|
|
|
|
==免責聲明==
[中國建材市場網]上提供的所有資訊均為作者提供和網友推薦收集整理而來,僅供學習和研究使用。轉載目的在于傳遞更多信息,并不代表本網贊同其觀點和對其真實性負責。如因作品內容、版權和其它問題需要同本網聯系的,請在30日內進行。 ※ 聯系電話:353658122。 |
==版權聲明==
未經[中國建材市場網]的明確許可,任何人不得盜鏈本站資源;不得復制或仿造本網站或者建立鏡像,[中國建材市場網]對其自行開發的或和他人共同開發的所有內容、技術手段和服務擁有全部知識產權,任何人不得侵害或破壞,也不得擅自使用。
已經本網授權使用作品的,應在授權范圍內使用,并注明“來源:[中國建材市場網]”。違反上述聲明者,本網將追究其相關法律責任。 |
|